2248 Grant Street

Half Duplex For Sale in Grandview Woodland, Vancouver East

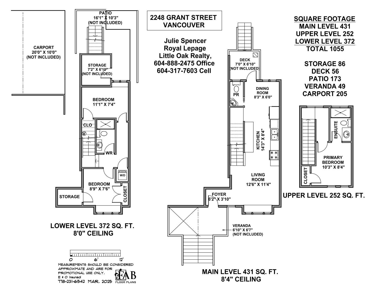
$1,299,900
  • 3 Beds
  • 3 Baths
  • 1,055 Sq. Ft.
  • Built 2021
Beautifully crafted side-by-side 1/2 duplex, where modern design, quality finishes, & thoughtful details come together seamlessly. Across 3 spacious levels, you’ll find 3 bdrms & 3 bthrms, complemented by bright, open living spaces with soaring ceilings & rich hardwood floors. Gourmet kitchen W/integrated appliances is perfect for gatherings, while the front & back porches offer inviting spots to unwind. Designated parking, NO strata fees, & home warranty—plus all the benefits of a nearly brand new home with NO GST! A gorgeous laneway home at the back of the property is also for sale, offering a rare opportunity for investors or multigenerational living. Situated on a fantastic street just steps from vibrant Commercial Drive, parks, shops, transit, & Lord Nelson Elementary.
Address
2248 Grant Street
List Price
$1,299,900
Property Type
Residential
Type of Dwelling
Half Duplex
Style of Home
3 Storey
Structure Type
Duplex, Residential Attached
Transaction Type
Sale
Area
Vancouver East
Sub-Area
Grandview Woodland
Bedrooms
3
Bathrooms
3
Half Bathrooms
1
Floor Area
1,055 Sq. Ft.
Main Floor Area
431
Lot Size
3670 Sq. Ft.
Lot Size Dimensions
33 x
Lot Size (Acres)
0.08 Ac.
Lot Size Units
Square Feet
Total Building Area
1055
Frontage Length
33
Year Built
2021
MLS® Number
R3059487
Listing Brokerage
Royal LePage Little Oak Realty
Basement Area
Finished
Postal Code
V5L 2Z7
Zoning
RS-7
Ownership
Freehold Strata
Parking
Carport Single, Rear Access
Parking Places (Total)
1
Tax Amount
$3,508.06
Tax Year
2025
Site Influences
Garden, Independent living
Community Features
Independent living
Exterior Features
Garden
Appliances
Washer/Dryer, Dishwasher, Refrigerator, Stove
Association
Yes
Board Or Association
Greater Vancouver
Heating
Yes
Heat Type
Natural Gas, Radiant
Carport
Yes
Carport Spaces
1
Laundry Features
In Unit
Levels
Three Or More
Number Of Floors In Property
3
Security Features
Security System, Fire Sprinkler System
View
Yes
View Type
MOUNTAIN from Primary Bedroom

Request More Info or a Showing

Compass Home Team

Royal LePage Little Oak

Email Directly

120 - 9220 GLOVER ROAD, LANGLEY BC V1M 2S2